

Miyama FUTON & Breakfast is a private thatched-roof house rental in the satoyama countryside of Miyama, Kyoto. The main house is registered as a Tangible Cultural Property of Japan and has been carefully preserved to maintain its authentic traditional atmosphere, while also being updated for modern comfort. Guests can enjoy a rare experience of staying in a historic farmhouse where nature, architecture, and Japanese lifestyle come together in harmony.
This traditional thatched-roof farmhouse is registered as a Tangible Cultural Property of Japan. Built more than 150 years ago, it represents the original rural lifestyle of Miyama. Staying here is not simply accommodation—it is an opportunity to experience living heritage, surrounded by the quiet beauty of Japanese craftsmanship and history.
The garden is one of the most peaceful features of Miyama FUTON & Breakfast. A large persimmon tree stands at its center, bringing seasonal beauty throughout the year. From fresh green leaves in spring to golden autumn colors, the garden reflects the slow rhythm of life in the countryside.
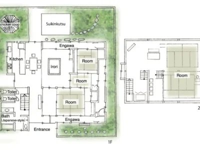
Within the garden, you will find a small thatched-roof chicken coop. Built with the same spirit as the main house, it looks like a miniature farmhouse. This unique structure symbolizes Miyama’s traditional culture, where practicality and beauty naturally coexist.
Behind the main house stands a traditional kura (storehouse), with thick clay walls built to protect valuable rice and possessions from fire. Inside the kura, a suikinkutsu has been created—a traditional Japanese sound feature where water droplets echo inside a jar buried underground. Guests can listen through a bamboo tube and enjoy the delicate, calming sound of water, like a natural musical instrument.
Inside the house, a long doma (earthen-floor corridor) connects the entrance to the back door. When opened, the wind flows through the house, reflecting the wisdom of traditional Japanese design made to prevent humidity and mold. The home also features tatami rooms divided by fusuma sliding doors, and a quiet tea room located deeper inside the house.
In rural Japan, the irori hearth was the center of everyday life. It provided warmth, brought the family together, and the smoke helped protect the thatched roof and wooden structure through natural fumigation. At Miyama FUTON & Breakfast, guests are allowed to use charcoal fire, enjoy traditional hot pot cooking, and grill river fish to experience authentic Japanese culture.
The attic of a thatched-roof house in Miyama was originally used to store kaya (thatching reed). Families harvested reed in autumn, dried it until spring, and stored it in the attic for future roof repairs. Today, the attic has been renovated into a quiet and dreamlike space for sleeping, reading, meditation, yoga, or simply relaxing. Old ropes and traces of thatch remain, allowing guests to feel the deep history of the house.
Although the house is historic, the kitchen, washroom, and toilet have been renovated with modern facilities, so guests can stay comfortably without inconvenience. Cooking utensils, cups, dishes, and basic kitchen tools are fully provided, making it easy for families and friends to enjoy cooking together during their stay.

Wi-Fi

Traditional irori hearth

Tatami room with futon bedding.

2Modern Toilets

Tatami room

Air Conditioning

hair dryer

A small charcoal BBQ grill

No TV

Kerosene fan heater

Fully equipped kitchen (cookware and tableware provided)

1 bathroom and 1 shower

washing machine

Water dispenser

Towels are provided.

toothbrush

Hand soap, body soap, shampoo, conditioner

No pajamas.

coffee, tea, green tea, herbal tea

Free Station Pickup

Non-smoking

Pet-friendly

Outside Food & Drinks Allowed

Capacity: 1–8 guests (larger groups may be accommodated upon request)

pour-over coffee dripper

microwave oven

rice cooker

toaster oven

refrigerator with freezer

Cutlery (chopsticks, knife, fork)

Cups, wine glasses, plates

electric kettle

Kitchen knife, cutting board

Frying pan, pot